Elektro Vaporgrill
- Kochfläche 1030x600 mm (3 Roste), 61,80 dm2.
- Tankkapazität: 20 Liter.
- Hergestellt aus Edelstahl AISI 304, gestanztes "Top" (20/10 mm), höhenverstellbare Nivellierfüße, Wasserdichtigkeit "IPX5".
- Abnehmbarer umlaufender Rand aus Edelstahl.
- "U"-förmiges Kochgitter aus AISI 441 Edelstahl mit einer Dicke von 2 mm (Lebensmittelecht gemäß europäischer Verordnung CE Nr. 1935/2004).
- Abnehmbare Roste und Deflektoren für einfache Wartung.
- Untere Wasserschale aus Edelstahl (doppelte Funktion): 1. Auffangen von Kochsäften, 2. Erzeugen von Dampf.
- Ein Wasserhahn zur Befüllung des Tanks ist oben angebracht, die Öffnung erfolgt durch ein Ventil an der Vorderseite des Geräts.
- Wasserablauf über den Überlauf (mit Filter) des Tanks.
- Elektrische Beheizung durch isolierte Heizwiderstände aus Edelstahl, geregelt durch einen Thermostat.
- Die Heizwiderstände können zur einfachen Wartung um 90° angehoben werden.
- Geräte werden unter Einhaltung der geltenden (CE) Standards gebaut.
-Optimieren Sie Ihre Effizienz mit den leistungsstarken elektrischen Grillrosten. Das einzigartige Design der "U"-förmigen Kochroste, die die Heizwiderstände umgeben, kombiniert mit darunter platzierten Deflektoren, gewährleistet eine schnelle Zubereitung auf der gesamten Oberfläche und eine reibungslose Bewältigung von Produktionshöhepunkten, was Ihnen wertvolle Zeit erspart!
- Der reduzierte Abstand zwischen den Heizwiderständen und den Rosten führt zu einem geringeren Energiebedarf und somit zu erheblichen Kosteneinsparungen! Die Anwesenheit einer integrierten Wasserschale garantiert außergewöhnliches Kochen, indem Dampf erzeugt und dabei Säfte aufgefangen werden, was die Rauchentwicklung reduziert.
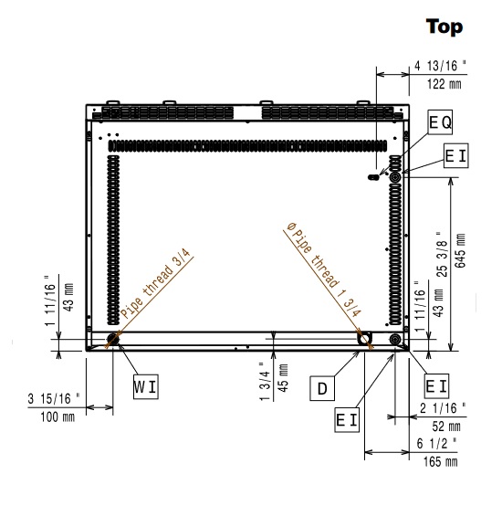
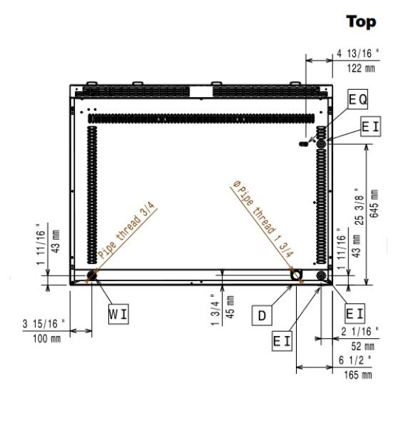
(B x T x H) mm1200 x 900 x 250(320)
kW17.4
Spannung400/3N 50-60Hz
Bruttogewicht (kg)160
Volumen (m³)0.51